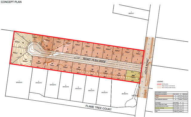
Another housing estate planned in Boonah’s Hoya Road

An infill subdivision along Hoya Road is currently under review by Scenic Rim council planners. The proposal is in line with council’s expectations that both sides of the street through to Pocock Road will eventually host residential estates. The latest development application comes from Kermandan Pty Ltd, a company headed by Beenleigh based real estate […]

Subscribe or Login to see the rest of the content.

Digital Editions


More News

  • Veresdale Scrub home set to impress

    Veresdale Scrub home set to impress

    A standout in the Veresdale Scrub, the sale of this home in Veresdale Scrub School Road will further push the numbers on percentage growth in the locality’s residential market. With…

  • Approval won for tiny cabins with big views

    Approval won for tiny cabins with big views

    A small visitor operation on Tamborine Mountain was another venture caught up in the crackdown by council compliance officers on unapproved tourist accommodation. In 2024, the landowner at 198-208 Macdonnell…

  • Farm experience added to Canungra tourist attractions

    Farm experience added to Canungra tourist attractions

    A farm experience tourist attraction has been given the go ahead on a small rural property on the outskirts of Canungra township. The approval by the Scenic Rim planners was…

  • Move to extend approval to Canungra subdivision

    Move to extend approval to Canungra subdivision

    A developer made a bid on Christmas Eve to extend the approval of a subdivision beside Canungra Creek on the northern outskirts of the township. Council approved the development in…

  • Formal approval for Rosevale wedding venue

    Formal approval for Rosevale wedding venue

    Skyline Farm owners have formalised its function as a wedding venue. Earlier last year, Skyline Pastoral Pty Ltd director, Cameron Crouch, engaged town planning agents to ‘formalise’ the facility’s operations…

  • Hikers winched after bone breaks

    Hikers winched after bone breaks

    It is just two weeks into the new year and the emergency services are as busy as ever responding to people who’ve come unstuck while hiking in the Scenic Rim.…

  • Cane toad in the hole

    Cane toad in the hole

    Last year Boonah and District Landcare (BADL) caught 10,442 toads by the toadometer during bust week. Every year BADL members rally the community to get as many cane toads out…

  • Buy local, shop at country markets

    Buy local, shop at country markets

    There are markets that run year round in the Scenic Rim. Each offer locally grown produce and homemade wares. Supporting local markets means helping out a fellow resident and being…

  • Pest plants choking the Fassifern’s native vegetation

    Pest plants choking the Fassifern’s native vegetation

    If you know what you’re looking for you’ll see weeds glycine (Neonotonia wightii) and asparagus fern (Asparagus scandens) choking native vegetation throughout the Scenic Rim. The tangled mess caused by…

  • Mountain advice for holiday hikers

    Mountain advice for holiday hikers

    The Great Dividing Range is a magnificent backdrop for rural towns like Kalbar and Boonah, and a magnet to hikers and experienced mountain climbers. But what goes up, must come…